



Email: Interiors.plush@yahoo.com
Measuring need not be stressful…
- Firstly, do not panic.
- Always use a Metal Tape Measure. This will give the most accurate size for your Windows or any area.
- Install Poles or Tracks ready for your installation of items.
- Take into account if floors or Carpets have not been laid yet, as in the case of a new home, always measure after they have been laid.
- Look around your window and take note of any pipes or obstructions that may affect your window dressings. Check for Window Handles, Tiles etc that could get caught or in the way of your Blinds or Curtains operating smoothly.
- Measure with another persons help where possible, use a stable ladder or steps.
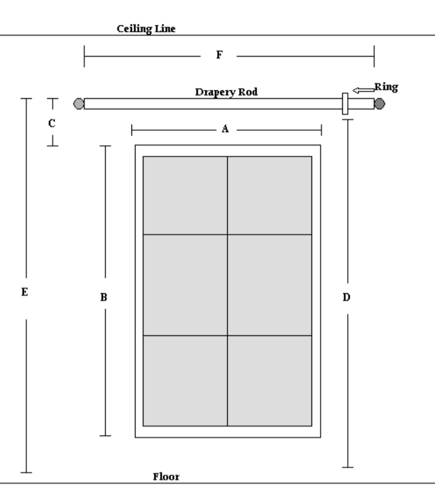
- INSIDE WINDOW RECESS – Measure the width of your window at three points. Top, Middle and Bottom of the window, use the smallest measurement. Measure the drop in three places also, Left, Middle & Right side, again use the smallest measurement, as in image on left.
- OUTSIDE RECESS – Measure where you want your Track, Pole or Blind to be placed. For Curtains, place it wider than the actual window so the curtains can be fully pulled back and let maximum light into your room. For Blinds the width should be wider to ensure the light does not come through the sides (Bleed) when the Blind is Lowered.
- Measure from the pole hooks to the floor on Left, Middle & Right, there may be differences due to uneven floors, use the smallest measurement.
- Also measure from the hook on the pole to the top of pole or track, this will help us with your curtain headings.
- Measuring Foam cushions always take note of all angles to get the correct dimensions and draw a rough sketch if possible.
Contact Us Should You Need Any Further Help
